Vielseitige Gewerbefläche in Bestlage

Ab Herbst 2026 stehen nach der Renovierung 116 m² zur Neuvermietung bereit.
Die Fläche kann gegebenenfalls auch aufgeteilt und getrennt genutzt werden.

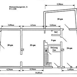
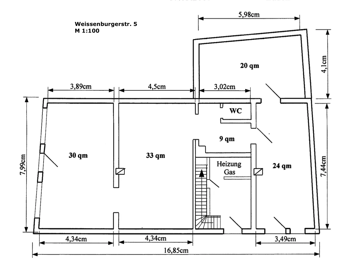
Diese attraktive Gewerbeeinheit liegt direkt an der gut frequentierten Durchgangsstraße B 13 (Weißenburger Straße) mit öffentlichen Parkplätzen direkt vor der Tür. Dank der zentralen Lage und der hervorragenden Sichtbarkeit bietet das Objekt ideale Voraussetzungen für Einzelhandel, Praxisräume oder ein repräsentatives Büro. Die Fläche umfasst das gesamte Erdgeschoss des Hauses und verfügt über Vorder- und Seiteneingänge zur exklusiven Nutzung.

Die Highlights auf einen Blick:

  • Maximale Sichtbarkeit: Große, helle Schaufensterfronten bieten reichlich Ausstellungsfläche und sorgen für lichtdurchflutete Ladenräume.
  • Flexibles Raumkonzept: Die Aufteilung ermöglicht vielfältige Nutzungsvarianten. Die mittlere Fläche von ca. 33 m² kann wahlweise als Verkaufsraum, Lager oder großzügiger Bürobereich genutzt werden.
  • Strukturierte Aufteilung: Es besteht die Möglichkeit, ein oder sogar zwei separate Bürobereiche einzurichten. Der hintere Bereich (hinter WC und Teeküche) lässt sich bei Bedarf räumlich von den vorderen Räumen (30 m² + 33 m²) abtrennen.
  • Vollausstattung: Eine eigene Teeküche sowie ein WC sind im mittleren Bereich bereits vorhanden.
  • Logistik & Privatsphäre: Ein geschlossenes Tor bietet einen blickgeschützten Bereich an der Seite, der ideal als Be- und Entladezone genutzt werden kann und zusätzliche Parkfläche bietet.
  • Zusätzlicher Stauraum: Bei Bedarf kann weiterer Lagerplatz zur Verfügung gestellt werden.

Diese Einheit bietet Ihnen die Freiheit, Ihre Geschäftsidee auf insgesamt großzügiger Fläche individuell zu verwirklichen.

 


Basisinfos (Immobilie)

ca. 1800
01.09.2026
Laden, Büroflächen und Brennerei
Gesamtes Erdgeschoss im 2-stöckigen Wohn- und Geschäftshaus

Informationen zur gewerblichen Nutzung

6
Verkauf 30 m² + 33m²; Büro 24 m²
vorhanden
20 m²
9 m²
2
ca. 11 m²
ca. 6 m gesamt
stufenlos
Start von Renovierungsarbeiten vor dem Sommer
Seiteneinfahrt mit Tor + Seiteneingang
Gaszentralheizung, Internetanschluss
2 Stellplätze
8
Schnapsbrennerei, Essig-, Wein- und Spirituosenhandel
Brennerei mit Spirituosenhandel

Kosten

1.160 Euro (netto)
250 - 300 Euro (nutzungsabhängig)
Kaution 2.320 Euro, Laufzeit Mietvertrag nach Vereinbarung
Loading...