Reizvolle Erdgeschossfläche im historischen Stadtbahnhof

Anmietung der Fläche von 136 m² bereits jetzt für Ende 2027/Anfang 2028 möglich.

Wunschnutzung wäre ein Bistro, ein Café, eine Eisdiele, ein Kiosk oder eine vergleichbare zum herausragenden Standort passende Nutzung. Eine Außennutzung auf dem Bahnhofvorplatz ist möglich und ausdrücklich erwünscht. Gegebenenfalls käme auch eine Büronutzung in Frage.

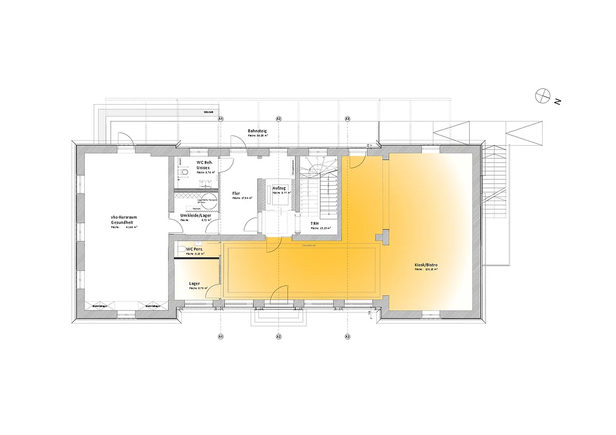
Die Fläche befindet sich im ehemaligen Eingangs-, Durchgangs- und Schalterbereich des Bahnhofs. Es handelt sich um eine große zusammenhängende Fläche mit angeschlossenem kleineren Lager und WC. Die Fläche ist sowohl vom Bahnhofvorplatz als auch von der rückwärtigen Seite zugänglich. 

Das gesamte Bahnhofsgebäude wird von Grund auf saniert und mit Ausnahme dieser Erdgeschossfläche zukünftig durch die Volkshochschule, die Musikschule und weitere Vereine genutzt. Die anstehende Sanierung soll bis Ende 2027/Anfang 2028 abgeschlossen sein. Eine frühzeitige Abstimmung mit dem neuen Nutzer ermöglicht auch eine passgenaue Abstimmung der neu einzurichtenden Installation. 






Basisinfos (Immobilie)

1885
Mietvereinbarung jetzt treffen - Mietbeginn Ende 2027 - Anfang 2028 nach grundlegender Sanierung des gesamten Bahnhofsgebäudes in den Jahren 2026 und 2027
136 m² im EG des 3-stöckigen Bahnhofsgebäudes

Informationen zur gewerblichen Nutzung

3
126,18 m²
3,18 m²
6,92 m²
6,76 m² Behinderten-WC (unisex) für gesamtes EG
6 einladende Rundbogen-Kasettenfenster - eins davon ist die Eingangstür.
3 Stufen
Das Gebäude ist an das Nahwärmenetz angeschlossen; Die Ausstattung kann im Rahmen der Sanierung an die Bedürfnisse des Mieters angepasst werden.
Bahnhofseingang, Wartesaal und Schalterbereich
Bistro, Café, Eisdiele, Kiosk - ggfs. auch Büro

Kosten

12 Euro / m²
4 Euro / m²
Loading...